Endgültige Position
12
Gesamtzahl der erhaltenen Stimmen:
377
Image for Bau einer Ambulanz mit angeschlossener Quarantänestation für Hunde und Katzen

Bau einer Ambulanz mit angeschlossener Quarantänestation für Hunde und Katzen

Interventionsbereich
Stray Prevention
Zielsetzung des Projekts
Erreichung einer schnelleren, effektiveren und qualitativ hochwertigen tierärztlichen Behandlung von Fundtieren, ohne dass vorhandene Schützlinge gefährdet werden.
Wo wird das Projekt durchgeführt?
Staat: DE
Bundesland: Kanton Herzegowina-Neretva
Stadt: Mostar / Vorort Kozice
Beschreibung des Projekts
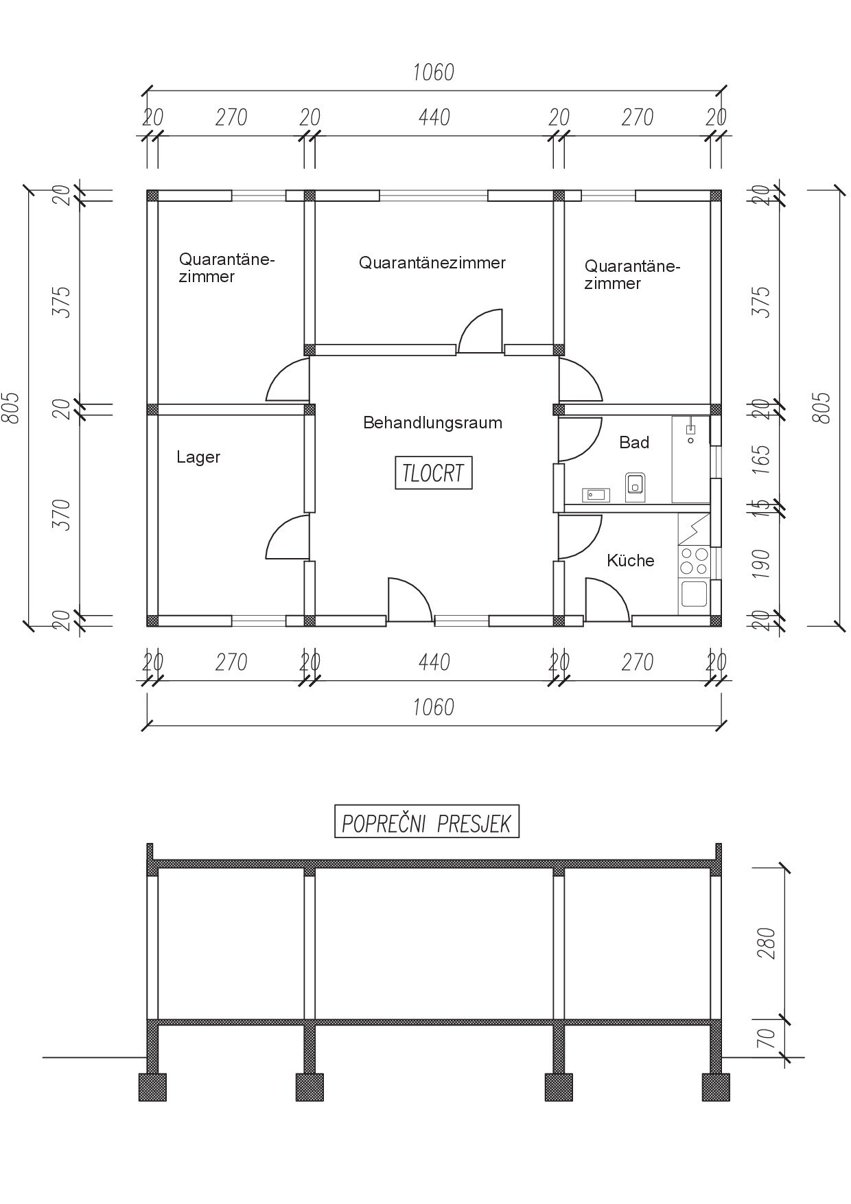
Das Streunerdorf besteht derzeit aus einem Haupthaus mit Aufenthaltsbereich, kleiner Ambulanz, Dusche und Mitarbeiter WC, einem Hundebereich mit 43 Kennels (davon 4 Kennels separiert als Quarantäne Bereich) und zwei Ausläufen sowie einem Katzenhaus mit zwei Gruppenzimmern mit Außenbalkon und kleiner Quarantäne. Auch bei größter Sorgfalt entsteht durch die gemeinsamen Wege und gemeinsame Nutzung bestimmter Einrichtungen ein Risiko, Keime aus den Quarantänen in die Anlagen der anderen tierischen Bewohner zu tragen. Außerdem bietet die kleine Ambulanz nicht den Platz und die Ausstattung, die für eine adäquate medizinische Versorgung der Bewohner notwendig wäre. Beide Probleme sollen durch den Neubau einer Ambulanz mit Quarantänezimmern angegangen werden. Das Gebäude soll in Massivbauweise auf dem Gelände des Streunerdorfs entstehen, aber außerhalb der bisherigen Strukturen mit eigenem kleinen Lager, Futtermittelküche und Reinigungsutensilien, um eine Durchmischung mit den vorhandenen Strukturen zu verhindern. Es ist geplant, feste Quarantäneboxen aus Edelstahl zu installieren sowie vollflächig geflieste Quarantänezimmer zu konstruieren zB für trächtige Hündinnen zur Entbindung oder auch für ganze Welpenwürfe. Die Ambulanz soll aus einem modern ausgestatteten Behandlungszimmer bestehen. Das Gebäude soll beheizt sowie klimatisiert sein und moderne hygienische und medizinische Standards erfüllen. Dazu ist geplant, das Gebäude vollflächig zu verfliesen und alle Räume mit Bodenablauf zu versehen, damit die gründliche Feuchtreinigung ermöglicht wird. Das Gebäude wird eine Schleuse für Mitarbeiter enthalten, damit bei Bedarf Schutzkleidung und Wechselschuhe angelegt werden können.
Wichtigste zu erwartende Ergebnisse
- Vermeidung der Übertragung von Krankheitserregern von ungeimpften neuen Bewohnern oder auch erkrankten Bestandsbewohnern auf andere Tiere - Signifikante Senkung der Krankheitsrate und Ausbreitung insb. von Krankheiten wie Giardien, Parvovirose, Katzenschnupfen, Milben, etc. - erhebliche Verbesserung der medizinischen Versorgung und Prophylaxe der Streunerdorfbewohner, durch Untersuchungs- & Behandlungsmöglichkeiten vor Ort sowie verbesserter Überwachung von Verläufen
Bilder- und Videogalerie
Profile Picture
Additional Photo 1
Additional Photo 2
INFORMATIONEN ÜBER DEN VEREIN, DER DAS PROJEKT EINGEREICHT HAT
Project Logo
Streunerglück e.V.
Wasserburger Landstraße 205, München, bayern, 81827, DE
Gründungsjahr: 2014
Website/Facebook-Seite: https://streunerglueck.de/
mission
Unsere Mission: das Leben von Hunden und Katzen vor Ort in Bosnien & Herzegowina nachhaltig zu verbessern. Dazu gehört die Kastration von Hunden und Katzen, die artgerechte Unterbringung, medizinische Versorgung und Vermittlung in geeignete Zuhause. Ein besonderes Anliegen ist uns die Aufklärungsarbeit in Kindergärten und Schulen. Hier werden Verständnis und Respekt gegenüber Tieren vermittelt und ausgebaut, in der Hoffnung, eine ganze Generation in ihrem Bewusstsein positiv zu beeinflussen.
AlmoNature AI